Brookings Health System
Location: Brookings, South Dakota
Project-at-a-Glance:
When a 25-bed hospital in the Midwest wanted to redesign their hospital around patient care and optimize the flow of materials from the dock to a patient’s bedside, we helped them deliver.
Brookings Health System is a small healthcare system that serves the needs of Brookings, South Dakota and its surrounding communities. The system includes the 49-bed Brookings Hospital, a 79-bed skilled nursing home, and several congregate living apartments for seniors. It’s a non-profit, city-owned system that offers its community a full range of inpatient, outpatient, surgery, home health, and extended care services.
The need:
Patient-centered care, with a seamless flow of supply chain
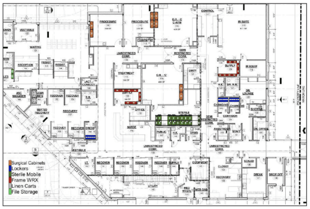
After the Brookings Hospital was initially designed, the process of vetting multiple vendors to outfit the hospital with the necessary storage and equipment began. The main goal of the hospital was to design around the patient first and foremost, with a close second being the optimization of materials and supplies — making sure there was a seamless flow from the receiving dock to the patient’s bedside.
The first step in this partnership was to analyze the current state of storage for the hospital’s nurses and other employees that would be interacting with the storage solutions to get an idea of their day-to-day process. At the same time, our planners also conducted a detailed audit of each department’s specific equipment needs and grouped them into solutions that already existed, and solutions that would need to be created. With the hospital’s supply chain and project construction teams, we created a storage road map that included allocated space, lineal storage feet available, expected growth, new technology that would be introduced, and relationship to point-of-care.
Comprehensive planning leads to desired results
After reviewing our detailed road maps with the hospital’s project team, we began our interdepartmental approvals and transition planning, followed by adjustments to the planned solutions, storage equipment, and individual workspace accommodations. We placed and quantified all medical equipment in relation to space available, and implemented standardization when it came to stocking and retrieving to make sure each department’s planned solution was in lockstep with other support spaces. The main reason for this standardization is that it saves time — if hospital staff can quickly and easily identify supplies across multiple spaces, it reduces the time spent hunting for and gathering supplies.
In this way, we acted as a one-stop shop for this hospital — taking them through comprehensive planning and audit work, and then being able to provide the physical solutions that solved their challenges. The list below is a list of everything we were able to provide for Brookings Hospital:
- Nurse servers and cabinets: pull-out nurse servers in patient rooms, stainless steel pass-through surgical cabinets, endoscopy storage cabinets, and glass door cabinets in the hospital’s sterile corridor.
- Carts and hampers: linen carts, hampers for soiled linens, Rubbermaid trash cans, exchange carts, surgical case carts, crash carts, and anesthesia carts
- Shelving and casework: facility-wide wire shelving for clean supply, pharmacy casework and unit dose shelving, stainless steel ante room casework, gift shop displays and casework, and wall-mounted catheter racks
- Additional solutions: kanban bin systems, acrylic locking med boxes, and lockers
We were able to deliver — or create all these products to our warehouse, pre-assemble them where needed, deliver, and install all products. As a result, Brookings was able to save time, cost, and the seamless installation and integration meant they were able to transition to their space without missing a beat with patient care.
Related Projects
Take a look at some of our latest projects to see how the FlowCARE Nurse Server has made a difference for these hospitals:
UW Health, Wisconsin
Looking to stay ahead of the game in hospital design, Wisconsin’s premier research hospital worked with FlowCARE on a custom nurse server that would provide efficiency today — and into the future.
